Réaménagement de l’étage d’une maison à Carquefou par notre bureau d’études

Réaménagement de l’étage d’une maison à Carquefou : un projet mené main dans la main

À Carquefou, près de Nantes, nous avons accompagné une famille dans la transformation complète de l’étage de leur maison pavillonnaire. Leur souhait : rendre l’espace plus fonctionnel, confortable et lumineux.
Comme pour chaque projet, nous avons misé sur la proximité, l’écoute et l’esprit d’équipe. Ensemble, avec nos clients, nous avons construit un nouvel espace de vie répondant à leurs besoins.

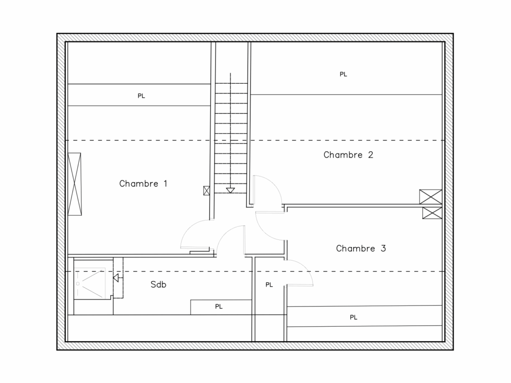
Notre bureau d’études assure une analyse sur mesure avant travaux

Avant de démarrer le chantier, notre bureau d’études a pris le temps d’analyser le projet sous tous les angles. Nous avons réalisé :
  • une étude de faisabilité pour valider le potentiel du lieu,
  • un estimatif précis du coût,
  • et la création des plans, pour optimiser chaque mètre carré.

Cette préparation nous permet, à chaque fois, d’avancer sereinement, avec une vision claire et partagée du résultat à atteindre.

Un chantier complet et maîtrisé

Une fois le projet validé, place à la réalisation ! Nos équipes ont coordonné et réalisé l’ensemble des travaux :

  • mise en place d’une nouvelle isolation pour un meilleur confort thermique,
  • rénovation complète de la salle de bain, moderne et fonctionnelle,
  • peinture et revêtement de sol au goût du jour dans les trois chambres.

Grâce à une organisation rigoureuse et une communication constante, nous avons livré le chantier dans les délais, en respectant chaque détail convenu.

Un résultat à la hauteur des attentes

Ce projet illustre parfaitement notre façon de travailler : un accompagnement de proximité, une écoute attentive et une réalisation soignée. Les clients profitent aujourd’hui d’un étage clair, chaleureux et harmonieux, repensé pour leur confort quotidien.

Chez EJ2B, nous pensons que notre rôle ne se limite pas à la technique : nous écoutons, conseillons et construisons ensemble votre projet grâce à notre bureau d’études.

Vous avez un projet ? Parlons-en, et imaginons ensemble le résultat.

Rodolphe Berthelot, Co-gérant – Chargé d’affaires – contact@ej2b.fr